2025.11.5広い駐車スペースがある、手助けが必要な篠山の戸建
物件情報



雰囲気のある古民家があるこちらは丹波篠山市京町という場所。似たような大きめの住宅が建ち並ぶエリアで、周囲の道路幅はそこまで広いわけでは無く多少運転に気を使う必要がありますが、物件に付随する駐車スペースは広めです。屋根なしのエリアに車一台駐車してこのポツンと感。軽トラなら20台は停められそうです。


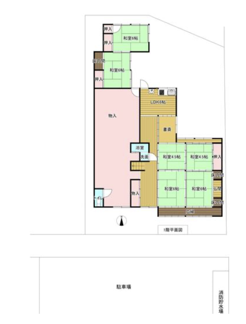
倉庫と玄関土間が繋がっており行き来がしやすい造りで、和室は比較的状態はマシです。風呂の写真が目ヤニMAXの時の視界ぐらいぼやけてますが、こちらは古いので改装が必要です。と言いますか、この物件で正直そのまま使える部分は非常に少なく、ほぼ改装が必要。すなわち皆様の手助けが必要な物件です。
細かいところ全て手を入れるとお金がめちゃくちゃかかり、そうでなくとも普通に住めるようにするためには1,000万円ぐらいかかるかと思います。内覧の際は基本それぐらいかかるというスタンスでよろしくお願いいたします。


そして最後に裏庭と2階倉庫です。
裏庭はそれなりに広く、家庭菜園ぐらいなら問題なくできます。そして2階の倉庫ですが、古民家ハンターの私も怖気付くほど床がギリでした。内覧の際は遠巻きに見ていただくようお願いいたします。
そんなこちらの物件ですが、1,250万円で販売中。改装必須ではありますが、駐車スペースが広い古民家物件は意外とそんなに見つからないので、まずは見てみるだけでもアリかもしれません。
お問い合わせはオザワ不動産まで。

オザワ不動産では、北摂エリアで狭小テナントを中心に紹介しておりますが、
ユニークな居住物件や古民家物件も紹介しております。
この物件が気になった方はメール・お電話にて物件番号をお伝え下さい。
また、「こんな物件を探してほしい」などリクエストもどうぞ。
以上、オザワ不動産でした。