2025.04.23大自然の中にある異質なRC、個性派宿にどうぞ
物件情報


今回は好きな人はめっちゃ好きそうな物件をご紹介します。
場所は京都市左京区大原というエリアで、京都と滋賀の県境あたりの場所。自然豊かな割に京都の市街地までも車で20分ほどでアクセス可能という攻守揃った場所で、お察しの通り物件情報が上がってくることも稀です。

この大原というエリアですが、三千院というお寺が非常に有名です。もちろん私は知りませんでした。
最寄りの駐車場から10分ほど坂を登り続けようやく門をくぐれるという、子連れのファミリーには厳しい立地にあるのですが、その敷地内に広がる美しい庭園は息を呑みます。
足元には一面苔が広がり、茶室からの借景も映画のワンシーンのような景色。インバウンドの観光客も多く訪れており、みなさんバッチリポーズを決め一眼レフでパシャパシャ。茶室というより撮影会場になってましたが、そうなる気持ちも分かる風景が広がっていますのでここは訪れてみても損はないお寺です。


さて、そんな三千院に負けないぐらいの借景を誇る物件がこちら。
周囲には木造の古民家が立ち並ぶ中、突如として現れるRCの堅牢な建物。築50年を経てようやく周りと馴染み始めてはいるものの、市街地でも見ることの無い大きな玄関間口が特徴的で存在感を示しています。



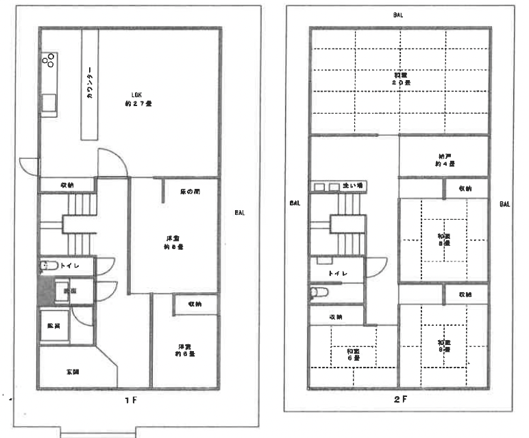
LDKは27帖で、一面の窓からは山々の彩りや開放感ある風景が広がっております。風の通りもとても良いので、内覧時にその爽やかさを味わってください。
さて、話は少し変わりますが、当物件は設備等含め住居専用として使うにはややオーバースペックなところがあります。トイレが複数個あったり、複数人横並びで使う洗面があったりなど。なので、宿や住居兼店舗など事業用途を絡めた使い方がオススメです。(許可申請等が必要)
先述の通り三千院がインバウンド客で盛り上がっておりますので、そこに紐づける形で集客するもよし。また、時期もありますが近くの道路は自転車やバイクのツーリングで交通量も盛んです。人が来てくれそうな条件は結構揃っており、あとはやり方次第なのかなと思います。

そして2階のお部屋がこちら。窓からの借景はあの三千院にも負けず劣らずの素晴らしい一枚が切り取られ、外の抜け感もご覧の通り。春は桜の彩り、夏は葉が新緑に染まります。そして秋は木々が紅く染まり、冬は雪景色。そんな四季折々の楽しみ方ができるという強みは、数ある旅館の中でも自然の中に溶け込んでいるこの物件だからこそのものではないでしょうか。


最後に、この物件には広い庭スペースもついております。そこでBBQなどを楽しむこともできますし、さらに階段を下れば川に直結しているという嬉しいサプライズも。
自然を見て、触れることができる一棟貸しの宿にぴったりな当物件。見た目もコンテンツも個性を出しやすいので、あとは内装を整えてあげるだけ。
きっと気に入るはずですので、まずは一度内覧してみてください。

オザワ不動産では、北摂エリアで狭小テナントを中心に紹介しておりますが、
ユニークな居住物件や古民家物件も紹介しております。
この物件が気になった方はメール・お電話にて物件番号をお伝え下さい。
また、「こんな物件を探してほしい」などリクエストもどうぞ。
以上、オザワ不動産でした。