2026.04.30箕面のアトリエ跡倉庫
物件情報



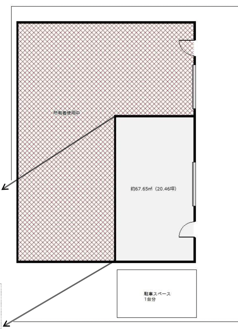
こちら箕面市外院という場所にある倉庫。室内は前入居者様による造作がそのまま残っており、事務所としてもそのまま使えそうな雰囲気です。駐車スペースは外に1区画ありますが、もし足りないということであれば室内をさらに改装いただいても構いません。
アナタのDIY力が試される倉庫というわけです。

1階には6帖ほどの部屋が2つ設けられており、物置などにちょうどいい空間。

また、トイレも比較的新しい設備で、キッチンスペースはIHコンロもあります。事務所として利用するにしても、快適な時間を過ごせそうですね。

そして2階。事務所として使えそうなスペースと、アトリエ跡の空間があります。アトリエ跡は塗料の汚れがありますが、このままでのお引き渡しになりますのでご了承ください。
元々67㎡の倉庫空間に2階の空間が造られてますので、上下合わせておおよそ130㎡ほどの広さになります。バイクなどを置ける事務所としていかがでしょうか。
お問い合わせはオザワ不動産まで。
