2025.12.19これはすぐ住みたい、岡町の46㎡ワンルームが6万円
物件情報


久しぶりにワンルームでも見に行こうかと物件を探していると、何とも興味深いものがあったので早速見てきました。先に感想を言うとめちゃくちゃ良かった。賃料が共益費込みの6万円という安さに加え、このホテルライクな共用部、そして部屋のクオリティ全てを加味して、僕がもっと若い頃にこの物件に出会っていれば即決していたでしょう。



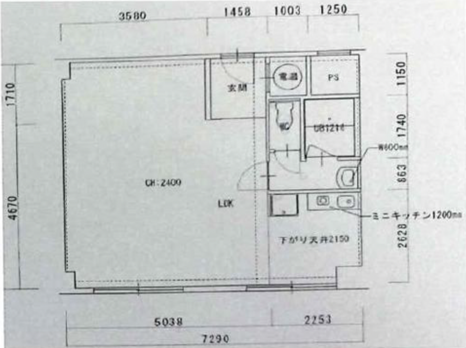
まず室内は46㎡という1LDKができるほどのワンルーム。一人で広々とした空間に住みたい方には抜群の空間で、風呂トイレがセパ、独立洗面台あり、さらにバルコニーからの眺望も青空全開と言うことありません。なんでこんな賃料なのか不思議なくらいです。引越しシーズンでワンルーム探している方はここ以外住む選択肢ありますか、と言いたい。そしてそりゃありますと言われたい。
岡町駅まで徒歩8分のこの巨大ワンルーム、ゲッチュするのは一体誰なのでしょうか。
お問い合わせはオザワ不動産まで。

オザワ不動産では、北摂エリアで狭小テナントを中心に紹介しておりますが、
ユニークな居住物件や古民家物件も紹介しております。
この物件が気になった方はメール・お電話にて物件番号をお伝え下さい。
また、「こんな物件を探してほしい」などリクエストもどうぞ。
以上、オザワ不動産でした。