2025.12.1南桜塚のストリートを制するテイクアウト向け路面店
物件情報



12月に入り、山下達郎&竹内まりや夫妻が世のクリスマスソングを制圧する準備に入りました。そして師走と言われるそんなシーズンに、なんか面白いものをこの前見つけました。
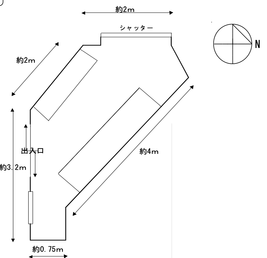
知り合いの物件を見に行った時にたまたま見つけた、タマタマ物件です。
歩道に窓が面しており、テイクアウトしてくださいと言わんばかりの佇まい。以前は揚げ物のテイクアウト屋さんだったみたいで、こんなに手渡ししやすい物件はそうそう無いでしょう。
また、私は店内を見ていないので現状の仕様がわかりませんが、テイクアウトではなくともかなりクセ強の物販もありではないかと思っています。
何せ賃料が非常にリーズナブルなので、「何か売りたい」と考えている方はぜひご連絡を。
お問い合わせはオザワ不動産まで。

オザワ不動産では、北摂エリアで狭小テナントを中心に紹介しておりますが、
ユニークな居住物件や古民家物件も紹介しております。
この物件が気になった方はメール・お電話にて物件番号をお伝え下さい。
また、「こんな物件を探してほしい」などリクエストもどうぞ。
以上、オザワ不動産でした。