2025.11.14箕面の開放感抜群ビル、スタジオにどうぞ
物件情報


探してみると案外見つからないのがスタジオ利用できる物件。特に開放感があり日当たりも良いとなると年単位での探し方を余儀なくされるパターンは全然あります。規模感は全然違いますが、私は今の事務所を探すとき2日くらいで見つけることができたことは結構奇跡なんだなと改めて思います。
しかし、奇跡は起こるものではなく起こすもの。広くて良いビルがこの度見つかりましたのでご紹介します。
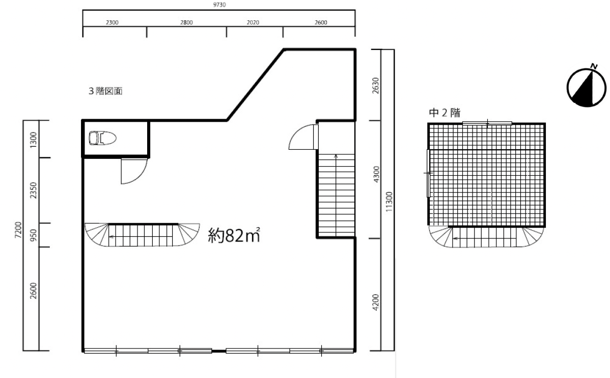
階段3階の最上階フロアのこちらの区画は、およそ27坪の中規模テナント。南向きの窓から明るい日差しが入り、広い空間でありながら温かい雰囲気。天井は取り払われ鉄骨が頭上を走り、開放感もバッチリ感じ取ることができます。

中央に陣取る存在感しかない赤い階段を上ると、4〜5坪ほどの中二階フロア。ここも日当たりがよく、壁付けのベンチもあります。
スタジオとして利用するなら、壁の色味がダーク系なので白っぽく塗装する必要があります。ただ壁の面積がまぁまぁ大きいので、工事はそれなりの時間とお金がかかりそうな気配です。
それでも、なかなかこんなトリッキーなスタジオ物件はありませんから、一度は見てみる価値大アリです。ちなみにちょっと広いですが、Barや軽飲食も相談可能、そして礼金0と非常にリーズナブルな初期費用となっております。
お問い合わせは、オザワ不動産まで。

オザワ不動産では、北摂エリアで狭小テナントを中心に紹介しておりますが、
ユニークな居住物件や古民家物件も紹介しております。
この物件が気になった方はメール・お電話にて物件番号をお伝え下さい。
また、「こんな物件を探してほしい」などリクエストもどうぞ。
以上、オザワ不動産でした。