2025.10.11上新田の小さなスタジオ
物件情報




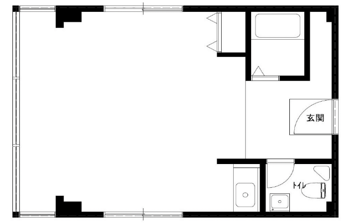
今回ご紹介するのは豊中市上新田にある小ぶりなスタジオ。このビルは1階に飲食店があり、美容室、音楽教室など多種に渡るテナントが入居している雑居ビルです。そんな雑居ビルの3階、広めのワンルームを改装したスタジオが募集開始です。
室内は窓に囲まれており明るく、陽もいい感じで差し込んでくるシンプルな空間。一見普通に見えますが、探してみると案外見つからないのが「窓が多くて明るい部屋」という条件の部屋です。マッチングアプリで「清潔感があって真面目な男性」を探すときと同じ難易度と思っていただければ幸いです。
また、トイレの蛇口が真鍮でレトロとオシャレを兼ね備えた仕様。こういう細かいところでもお店として箔がつくポイントなのだと私は思います。知らんけど。
アイラッシュサロン、ネイルサロンなど各種サロンがイメージしやすいこの小さいスタジオは、賃料もリーズナブルで7万円で募集開始です。
お問い合わせはオザワ不動産まで。

オザワ不動産では、北摂エリアで狭小テナントを中心に紹介しておりますが、
ユニークな居住物件や古民家物件も紹介しております。
この物件が気になった方はメール・お電話にて物件番号をお伝え下さい。
また、「こんな物件を探してほしい」などリクエストもどうぞ。
以上、オザワ不動産でした。